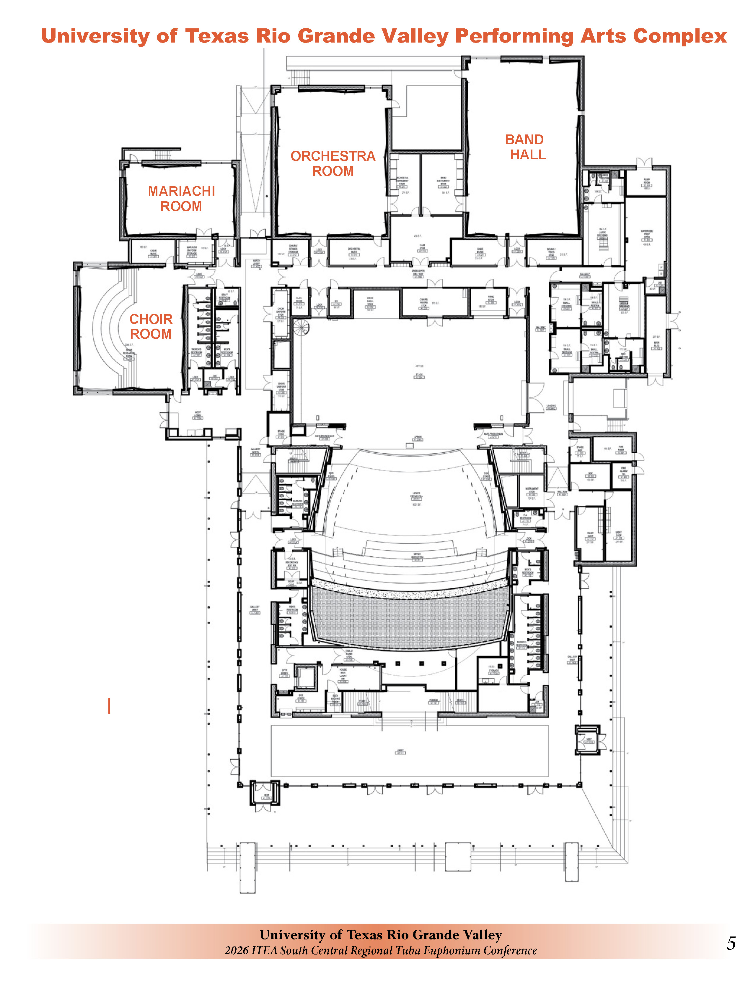
PAC Map Mar 9, 2026 admin The UTRGV Performing Arts Complex is a world-class facility. Most events will take place in the concert hall, band room, orchestra room or the choir room.